- Vung nửa triệu euro, Bale thuê hẳn một hòn đảo để cầu hôn bạn gái
- Đón Trung thu kiểu Vinhomes Riverside

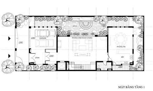
Trong khu đất 336 m2 (12x28m), công trình ở Long Biên (Hà Nội) chỉ xây dựng trên diện tích 185 m2, phần còn lại được dành làm sân vườn. Hình thức bên ngoài nhà được xử lý giản dị.

KTS Đỗ Tử Đoàn (Lotus Architects) bố trí nhà ở sang một bên, để tạo khoảng sân vườn rộng ở phía còn lại. Phòng khách nằm ở trung tâm ngôi nhà, mở cửa kính lớn ra hồ cá kề bên.

Không gian sinh hoạt chung còn thoáng đãng hơn nhờ khoảng thông tầng. Điều này tạo nên sự kết nối, giao hòa giữa trong và ngoài nhà, tầng trên và dưới.

Khu vườn với hồ cá, non bộ, cây cảnh đậm nét hoa viên phương Đông.

Mặt nước trải dài theo sườn nhà với những chú cá Koi tung tăng bơi lội tạo nên nhiều góc nhìn đẹp.

Sân vườn, hồ cá bao bọc ngôi nhà gợi cảm giác bình yên, tĩnh tại và đem lại không khí trong lành cho gia đình 4 người.

Bếp nằm ở phía sau với nhiều điểm nhìn ra vườn đem lại sự thư thái cho người nấu bếp.

Nhờ khoảng thông tầng ở phòng khách, từ tầng 2 cũng có thể ngắm trọn vẹn hồ cá.

Ở tầng 2 có thêm khu sinh hoạt chung của gia đình, nơi mọi người có thể ngồi thưởng trà, ngắm cảnh hoặc chơi đàn bên cửa sổ.

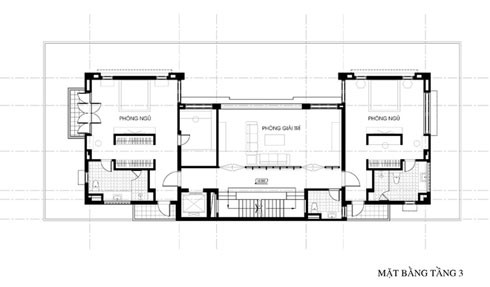
Phòng ngủ chính với nội thất gỗ màu nâu trầm gợi về sự bình an, tĩnh tại, hướng nội.

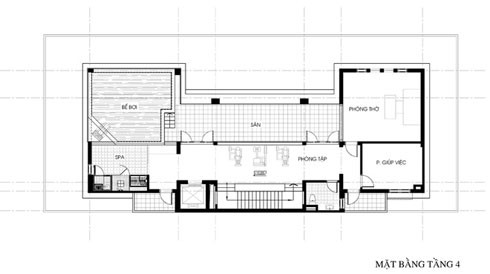
Tầng 4 dành cho các hoạt động thể thao và chăm sóc sức khỏe như phòng tập, bể bơi, phòng spa và một khoảng sân rộng. Bể rộng 27 m2 nằm trên tầng cao nhất đòi hỏi kết cấu nhà phải vững chắc để chịu trọng tải của nước. Phần chống thấm được thi công cẩn thận. Phía trên có mái trong, xung quanh là thành kính đảm bảo an toàn tránh mưa nắng nhưng vẫn cho không khí, ánh sáng chiếu vào.



